Our Cabins
Our Current Projects
We design and build fully engineered cabin models in-house, with a focus on durability, efficiency, and quality construction. Working from our own original designs supports consistent build quality and a well-managed construction process. Each model reflects a distinct balance of size and layout, shaped by its intended use. Reviewing the model details and specifications can help clarify which layout best aligns with how the space will be used.
TAMARACK
Our larger cabin model, offering additional space and flexibility while maintaining a simple, grounded footprint.
Key Specifications
- Footprint: 16 × 38
- Living space:
- 16′ × 32′ main level
- 5′ × 14′ storage loft
- 6′ × 16′ covered timber-frame porch
- Total square footage: 678 sq ft
- Structure: engineered and reviewed to meet state requirements
- Construction highlights:
- Douglas Fir timber-frame roof system
- Innovative hinged roof design allowing a full 24″ eave
- Estimated price range: $133,000
Final pricing varies based on site conditions, options, and delivery. - View full standard features & construction specifications
Design & Build Notes
Designed as the more expansive of the two models, the Tamarack incorporates additional length and detailing that allow for greater interior adaptability and improved weather protection. Features such as extended eaves and a layout suited to full-size utilities support longer stays and more varied use. The result is a cabin that offers added capability without added structural complexity.





PANORAMIC
Our larger cabin model, offering additional space and flexibility while maintaining a simple, grounded footprint.
A porch-free version of the Tamarack layout that maintains the same footprint and interior organization while simplifying the exterior structure. This configuration removes the 6′ × 16′ covered timber-frame porch and may appeal to buyers who prefer a simpler entry or unobstructed exterior views.
Two Panoramic cabins have already been built and are currently available. Additional units can be constructed upon request.
Available Units Include
• Tamarack layout without porch
• Radiant floor heat installed
• Same Tamarack footprint and structural system. All other Tamarack specifications generally apply. Price: $119, 000

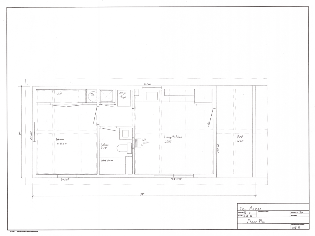
ASPEN
A thoughtfully sized cabin that favors simplicity and efficiency—ideal where a smaller footprint is preferred.
Key Specifications
- Footprint: 14 × 34
- Living space:
- 14′ × 28′ main level
- 5′ × 12′ storage loft
- 6′ × 14′ covered timber-frame porch
- Total square footage: 536 sq ft
- Structure: engineered and reviewed to meet state requirements
- Construction highlights:
- Spray foam insulation
- Long-life metal roofing
- Estimated price range: $116,000
Final pricing varies based on site conditions, options, and delivery. - View full standard features & construction specifications
Design & Build Notes
The Aspen is intentionally compact, with proportions and details refined for clarity and efficiency. Its layout reflects hands-on building experience and proven methods, resulting in a straightforward cabin well suited to a wide range of sites and uses.




TWO-BEDROOM GLACIER VIEW CABIN (IN DEVELOPMENT)
A larger cabin layout currently in development designed to accommodate two private bedrooms while maintaining the same practical construction approach used in our existing models. This layout is being refined in response to frequent requests for a cabin that can comfortably support longer stays or additional occupants.
A conceptual plan is available for reference. Please contact us if you would like to discuss this layout further.
Standard Features & Construction Specifications
Structural & Framing
- Subfloor: 2×10 @ 16″ O.C. with ¾″ OSB sheathing
- Wall framing: 2×6 @ 16″ O.C. with 7⁄16″ OSB sheathing
- Roof framing: Douglas Fir timber-frame roof system per plan
- 5⁄8″ OSB roof sheathing
Insulation
- Spray foam insulation
- R-21 in floors and walls
- R-38 in roof
Windows & Doors
- Andersen 100 fiberglass windows
- Fiberglass Feather-River craftsman-style entry door
Exterior Materials
- 4′ 26-gauge corrugated metal wainscot
- 6″ cedar lap siding
- Rugged Rib 29-gauge, 40-year metal roofing
Mechanical & Utilities
- Electric cove heat (standard)
- Radiant floor heat option available
- Electric 40-gallon water heater
- Washer / dryer hookup
Interior Finishes
- Waterproof wood-plank laminate flooring
- Knotty alder interior doors and trim
- Solid-surface Corian countertops
- All-wood cabinets (No MDF or particle board)
- 1×8 whitewashed pine ceiling
- Wall finish: wood / drywall mix
Appliances
- Appliances included (Samsung, or equivalent), unless specified otherwise
Specifications subject to change based on availability, engineering requirements, and project conditions.
Final specifications are governed by the executed sales agreement.
Explore Availability
If this approach aligns with what you are looking for, we welcome the opportunity to discuss your project.